Có thế nói khi bạn đã có cho mình một thiết kế thi công nội thất shop thời trang hoàn hảo, thu hút, đẹp và ấn tượng chính là chìa khóa vàng giúp bạn mở ra két sắt giá trị từ ngành kinh doanh thời trang này.
Để có được một thiết kế thi công nội thất shop thời trang hoàn hảo làm chìa khóa kinh doanh của bạn thì bạn cần nên nắm bắt tốt cho mình những mẫu thiết kế nội thất, đơn vị nào là uy tín trong thiết kế thi công nội thất shop thời trang để tạo nên và đạt được những mong muốn, nguyện vọng đó.
Không gian thiết kế thi công nội thất shop thời trang đẹp
Mẫu thiết kế nội thất shop thời trang
Thiết kế nội thất chính là một trong những yếu tố tạo nên sức hút cho shop thời trang của bạn.
1. Thiết kế shop thời trang nữ
Trước khi có được cho mình một thiết kế bạn cần xác định đối tượng khi hàng ở đây mà bạn muốn nhắm đến chính là các khách hàng nữ. Chỉ có như vậy bạn mới có thể trang trí nội thất shop thời trang với những phụ kiện đi kèm hợp lý và hợp thời trang, chuẩn gu.
<<< Xem thêm: Thiết kế shop thời trang

Thiết kế nội thất dành cho shop thời trang nữ
Sau khi định hình và chọn được loại quần áo chuyên biệt để kinh doanh cho cửa hàng của mình thì bước tiếp theo bạn có thể linh động để lựa chọn các loại phụ kiện đi kèm như: mũ nón, thắt lưng, túi xách, cài áo để phối thành bộ.

Không gian trưng bày trong thiết kế thi công nội thất shop thời trang nữ
Tóm lại với mục đích nhắm vào đối tượng chính là phái nữ, thiết kế thi công nội thất shop thời trang của bạn cần phải sở hữu các concept phù hợp với các cô gái. Hơn nữa, thiết kế của bạn phải liên tục cập nhật những xu hướng của sản phẩm mới nhất để bày bán để nhằm tạo nên sự mới mẻ và dễ dàng thu hút khách hàng hơn.

Mẫu thiết kế thi công nội thất shop thời trang nữ đẹp, thu hút và sang trọng
2. Thiết kế nội thất shop thời trang nam
Khác với các thiết kế nội thất shop thời trang nữ, thường tập trung nhiều hơn vào các loại quần áo, kiểu dáng, đối với thiết kế dành cho shop thời trang nam lại thường có thiết kế khá đơn giản và ít tốn diện tích.

Không gian thiết kế shop thời trang nam đẹp, quý phái và sang trọng
Bạn chỉ cần biết cách sắp xếp không gian và bố cục gọn gàng, ngăn nắp, chỉ cần như vậy là bạn đã có thể ghi điểm rất nhiều trong mắt khách hàng. Bạn cần đặc biệt tạo được không gian thiết kế sao cho toát lên hết được sự mạnh mẽ, quý phái, lịch lãm và sang trọng cho khách hàng.

Không gian thiết kế nội thất dành cho shop thời trang nam
Theo như kinh nghiệm mà Bluecons nắm bắt được thì nhu cầu của khách hàng nam khác xa so với nữ nhưng không vì thế mà không nhìn ngắm hay thẩm mỹ nên trong thiết kế thi công nội thất shop thời trang của mình bạn nên chọn cho mình những phong cách tối giản nhưng tinh tế, không cần phải bày biện quá nhiều mặt hàng gây rối mắt, đó là những kiểu nội thất shop quần áo khiến khách hàng nam yêu thích.

Mẫu thiết kế nội thất shop thời trang nam cuốn hút và ấn tượng
3. Mẫu thiết kế nội thất thời trang trẻ em
Hiện nay, vấn về thời trang của trẻ luôn là vấn đề quan tâm của các bậc phụ huynh, họ luôn muốn mang đến cho con mình khoác lên những bộ quần áo, bộ cánh đẹp nhất. Vì vậy, việc lựa chọn thiết kế nội thất cho shop thời trang trẻ em cũng hết sức quan trọng.

Mẫu thiết kế shop thời trang trẻ em đẹp
Bạn cần phải lưu ý rằng với những thiết kế shop thời trang trẻ em thì không nên thiết kế những giá hàng ở vị trí quá cao hoặc ở vị trí khuất tầm mắt. Điều đó sẽ khiến các bé không nhìn thấy được những bộ đồ mình yêu thích.

Không gian thiết kế shop thời trang trẻ em
Chính các mẫu thiết kế nội thất riêng dành cho mỗi loại shop, mỗi phong cách giúp bạn định hình cụ thể đối tượng khách hàng từ đó giúp bạn dễ dàng lên ý tưởng, lựa chọn thiết kế thi công phú hợp nhất.
Tham khảo thêm: thi công shop thời trang
Đơn vị thiết kế thi công nội thất shop thời trang uy tin, chuyên nghiệp và đảm bảo chất lượng tại Thành phố Hồ Chí Minh
Có thể với sự quan trọng của thiết kế thi công nội thất trong một shop thời trang đã tạo nên những như cầu cấp bách và khó khăn nhất định trong việc lựa chọn của các chủ cửa hàng. Để có thể có được cho mình một không gian kinh doanh shop thời trang đẹp và thu hút không phải là công việc đơn giản. Chính vì vậy, các nhà đầu tư, chủ cửa hàng, chủ shop thời trang luôn cần có cho mình một sự sáng suốt trong việc lựa chọn đơn vị hợp tác thiết kế thi công nội thất shop thời trang của mình.

Mẫu thiết kế thi công nội thất shop thời trang đẹp và chất lượng
- Công ty chuyên thiết kế và thi công nôi thất shop thời trang tại TPHCM – Bluecons
Bluecons luôn là đối tác đáng tin cậy của khách hàng, gương mặt chỉ điểm gọi tên khi nhắc đến nhà thiết kế thi công nội thất shop thời trang tại khu vực thành phố Hồ Chí Minh và các vùng lân cận.

Mẫu bố trí không gian thiết kế nội thất shop thời trang
Bluecons với đội ngũ kiến trúc sư nhiều năm kinh nghiệm trong nghề và cả đội ngũ thi công chuyên nghiệp luôn luôn thấu hiểu đầy đủ tâm tư, nguyện vọng và khó khăn của khách hàng. Với phương châm “chất lượng hơn số lượng” chúng tôi mong muốn mang lại cho bạn những giá trị tốt nhất.
- Quy trinh tư vấn và thiết kế thi công nội thất shop thời trang của Bluecons
– Tư vấn thiết kế thi công đây là quá trình trao đổi với khách hàng về các yêu cầu và nguyện vọng, ý tưởng thiết kế phù hợp giữa quầy bar so với tổng thể thiết kế quán.
– Khảo sát mặt bằng, đo đạc và tư vấn trực tiếp, cụ thể hơn.
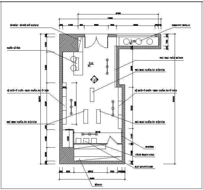
– Lên phương án bản vẽ thiết kế mặt bằng, bảng vẽ 2D, 3D.

Bản vẽ thiết kế thi công nội thất shop thời trang
– Triển khai chi tiết cụ thể bản vẽ thiết kế
– Hoàn thiện hồ sơ thiết kế và thực hiện phương án thi công theo tiến độ.
– Bàn giao và hoàn thiện dự án.

Hoàn thiện thi công shop thời trang
- Tại sao nên chọn Bluecons cho thiết kế thi công nội thất shop thời trang của bạn?
– Phí thiết kế thi công cạnh tranh, có chính sách giảm phí khi khách hàng đăng ký thiết kế, thi công trọn gói.
– Đội ngũ kiến trúc sư, nhân viên thi công chuyên nghiệp đáp ứng đầy đủ những yêu cầu của khách hàng dù khắc khe nhất.
– Chế độ bảo hành, chính sách hậu mãi tốt.
Thông tin liên hệ:
Những công trình mà Bluecons thực hiện luôn mang một phong cách riêng biệt, không đại trà bởi bản thiết kế là sự kết hợp hài hoà giữa ý tưởng của khách hàng và sự góp ý chân thành, sáng tạo nhất của đội ngũ kĩ sư để tạo nên một công trình hoàn hảo nhất cho quý khách hàng. Công ty Bluecons là công ty chuyên về thi công xây dựng các thiết kế về nội thất văn phòng từ các vật liệu tự nhiên, các kiểu dáng và phong cách phù hợp với nhu cầu của khách hàng.
- Địa chỉ: 1264/11 Lê Đức Thọ, Phường 13, Gò Vấp, Tp. Hồ Chí Minh.
- Điện thoại: 0906.157.879(Mr. Việt)
- Email: Blueconsvn@gmail.com
- Fanpage: THIẾT KẾ VÀ THI CÔNG NỘI THẤT BLUECONS
“`html
Giới thiệu
Trong thời đại hiện nay, việc tạo ra một không gian mua sắm hấp dẫn và độc đáo không chỉ giúp thu hút khách hàng mà còn tạo nên sự khác biệt cho thương hiệu. Thiết kế thi công nội thất shop thời trang là một phần quan trọng trong việc xây dựng trải nghiệm mua sắm, từ cách bài trí sản phẩm đến không gian tổng thể. Bài viết này sẽ cung cấp cho bạn cái nhìn tổng quan về quy trình thiết kế và thi công nội thất cho shop thời trang, cũng như những lợi ích mà nó mang lại.
Lợi ích/Ưu điểm
- Tăng tính thu hút: Một thiết kế nội thất đẹp mắt sẽ thu hút khách hàng bước vào shop của bạn.
- Cải thiện trải nghiệm khách hàng: Không gian được bố trí hợp lý giúp khách hàng dễ dàng tìm kiếm và lựa chọn sản phẩm.
- Tạo ấn tượng thương hiệu: Nội thất phản ánh phong cách và giá trị của thương hiệu, giúp khách hàng ghi nhớ lâu hơn.
- Tối ưu hóa không gian: Thiết kế thông minh giúp sử dụng hiệu quả từng mét vuông, tăng khả năng trưng bày sản phẩm.
- Giảm chi phí vận hành: Sử dụng vật liệu và thiết kế hợp lý có thể giảm chi phí bảo trì và vận hành lâu dài.
Vật liệu/Thông số
Trong thiết kế thi công nội thất shop thời trang, việc lựa chọn vật liệu là rất quan trọng. Dưới đây là một số vật liệu thường được sử dụng:
- Gỗ tự nhiên: Mang lại vẻ đẹp sang trọng và ấm áp.
- Kính: Tạo cảm giác không gian mở, giúp ánh sáng tự nhiên vào bên trong.
- Kim loại: Thêm phần hiện đại và phong cách cho không gian.
- Vải và chất liệu mềm: Tạo sự thoải mái và dễ chịu cho khách hàng.
Quy trình/Các bước
- Khảo sát không gian: Đánh giá kích thước, hình dạng và ánh sáng tự nhiên của shop.
- Xác định phong cách thiết kế: Chọn phong cách phù hợp với thương hiệu và đối tượng khách hàng.
- Lập kế hoạch thiết kế: Sử dụng phần mềm thiết kế để tạo mô hình 3D, giúp hình dung không gian.
- Chọn vật liệu: Lựa chọn vật liệu phù hợp với ngân sách và phong cách thiết kế.
- Thi công: Triển khai thi công theo bản vẽ thiết kế, đảm bảo chất lượng và tiến độ.
- Hoàn thiện và bàn giao: Kiểm tra lại toàn bộ công trình, đảm bảo mọi thứ hoàn hảo trước khi bàn giao cho khách hàng.
Báo giá/Chi phí tham khảo
Chi phí thiết kế thi công nội thất shop thời trang có thể dao động tùy thuộc vào nhiều yếu tố như:
- Kích thước của shop
- Phong cách thiết kế
- Vật liệu sử dụng
- Đơn vị thi công
Thông thường, chi phí có thể dao động từ khoảng 1.000.000 VNĐ đến 5.000.000 VNĐ/m², tùy thuộc vào yêu cầu cụ thể của từng dự án.
Câu hỏi thường gặp (FAQ)
Câu hỏi 1: Thời gian thi công nội thất shop thời trang là bao lâu?
Thời gian thi công thường mất từ 2 đến 6 tuần, tùy thuộc vào quy mô và mức độ phức tạp của dự án.
Câu hỏi 2: Những yếu tố nào ảnh hưởng đến chi phí thiết kế nội thất?
Các yếu tố bao gồm kích thước không gian, phong cách thiết kế, vật liệu sử dụng và chi phí nhân công.
Câu hỏi 3: Tôi có thể tự thiết kế nội thất shop của mình không?
Có thể, nhưng nếu bạn muốn có một không gian chuyên nghiệp và ấn tượng, hãy tìm đến các đơn vị thiết kế chuyên nghiệp.
Câu hỏi 4: Liệu có bảo hành cho công trình thi công không?
Nhiều đơn vị thi công cung cấp chế độ bảo hành cho công trình, thường là từ 1 đến 3 năm.
Câu hỏi 5: Tôi có thể thay đổi thiết kế sau khi đã thi công không?
Việc thay đổi thiết kế sau khi thi công có thể gây tốn kém và phức tạp, vì vậy bạn nên cân nhắc kỹ trước khi quyết định.
Kêu gọi hành động
Hãy liên hệ với chúng tôi ngay hôm nay để được tư vấn miễn phí và bắt đầu dự án thiết kế thi công nội thất shop thời trang của bạn! Đừng bỏ lỡ cơ hội tạo ra không gian cửa hàng ấn tượng và thu hút khách hàng!
“`
Thiết Kế Thi Công Nội Thất Shop Thời Trang Đẹp Và Hiện Đại #ThiCongNoiThat #ThietKeShop
Giải Pháp Thiết Kế Nội Thất Shop Thời Trang Độc Đáo #ThietKeShop #NoiThatThoiTrang
Thi Công Nội Thất Shop Thời Trang Sang Trọng Và Chất Lượng #NoiThatShop #ThietKeNhaHang
Lợi Ích Của Thiết Kế Thi Công Nội Thất Shop Thời Trang
Không chỉ đơn thuần là một không gian bày bán sản phẩm, thiết kế thi công nội thất shop thời trang còn mang đến nhiều lợi ích to lớn cho doanh nghiệp. Một thiết kế đẹp mắt sẽ thu hút khách hàng ngay từ cái nhìn đầu tiên, tạo ấn tượng mạnh và khiến họ muốn bước vào để khám phá thêm. Sự thú vị trong trang trí nội thất cũng có thể khiến khách hàng lưu lại lâu hơn, từ đó tăng khả năng mua sắm. Ngoài ra, không gian được thiết kế hợp lý còn giúp tối ưu hóa việc trưng bày, làm nổi bật sản phẩm, tạo điều kiện thuận lợi cho việc bán hàng. Đặc biệt, một shop có thiết kế hiện đại và trung tính có thể dễ dàng điều chỉnh lại phong cách mỗi mùa, đáp ứng linh hoạt những thay đổi trong xu hướng thời trang.
Vật Liệu Và Thông Số Cần Xem Xét
Khi lên kế hoạch thiết kế thi công nội thất cho shop thời trang, việc lựa chọn vật liệu và các thông số kỹ thuật là rất quan trọng. Sàn nhà có thể được lát bằng gỗ tự nhiên hoặc gạch men cao cấp, tạo nên sự sang trọng. Những bức tường có thể sơn hoặc dán giấy dán tường, giúp tăng tính thẩm mỹ. Đèn chiếu sáng là một yếu tố không thể thiếu, chọn hệ thống đèn LED để tiết kiệm điện và cung cấp ánh sáng đầy đủ cho không gian trưng bày. Bên cạnh đó, các kệ trưng bày và bàn thu ngân cần phải được thiết kế đơn giản nhưng hiện đại, sử dụng vật liệu bền bỉ để dễ dàng thay thế hoặc bảo trì trong tương lai.
Quy Trình Thiết Kế Và Thi Công Nội Thất Shop Thời Trang
Quy trình thiết kế và thi công nội thất shop thời trang bao gồm nhiều bước cụ thể. Đầu tiên, bạn cần xác định rõ phong cách mà bạn muốn hướng tới. Tiếp theo, lên kế hoạch chi tiết về bố trí mặt bằng, vị trí để tiếp nhận ánh sáng tự nhiên và các khu vực trưng bày. Sau khi có được bản thiết kế sơ bộ, bạn sẽ cần xin phép và thực hiện các thủ tục cần thiết để bắt đầu thi công. Trong quá trình thi công, khâu quản lý chất lượng là rất quan trọng để đảm bảo mọi thứ diễn ra theo đúng kế hoạch. Cuối cùng, khâu hoàn thiện và dọn dẹp cũng cần được quan tâm để khách hàng có được cảm nhận hoàn hảo ngay từ lần đầu tiên bước vào.
Báo Giá Thi Công Nội Thất Shop Thời Trang
Giá thi công nội thất shop thời trang có thể thay đổi tùy thuộc vào nhiều yếu tố như diện tích, vật liệu sử dụng, cũng như yêu cầu thiết kế. Thông thường, mức giá có thể dao động từ 1,000,000 VNĐ đến 5,000,000 VNĐ mỗi mét vuông, tùy vào độ phức tạp của thi công và các vật liệu được lựa chọn. Một số dịch vụ trọn gói có thể cung cấp mức giá ưu đãi hơn, bao gồm cả thiết kế và thi công. Khách hàng nên nắm rõ định mức và ngân sách của mình trước khi bắt đầu để tránh phát sinh thêm chi phí không mong muốn.
Câu Hỏi Thường Gặp (FAQ)
Câu hỏi 1: Thiết kế nội thất shop thời trang mất bao lâu?
Thời gian thiết kế và thi công nội thất cho một shop thời trang có thể kéo dài từ 4 đến 8 tuần, tùy thuộc vào quy mô và mức độ phức tạp của dự án.
Câu hỏi 2: Những yếu tố nào ảnh hưởng đến giá thi công?
Một số yếu tố chính ảnh hưởng đến giá cả bao gồm diện tích shop, chất liệu được sử dụng, và phong cách thiết kế yêu cầu.
Câu hỏi 3: Có nên thuê dịch vụ thiết kế chuyên nghiệp không?
Có, việc thuê dịch vụ thiết kế chuyên nghiệp sẽ giúp bạn tiết kiệm thời gian và đảm bảo rằng không gian của bạn được tối ưu hóa về mặt thẩm mỹ và chức năng.
Câu hỏi 4: Có thể điều chỉnh thiết kế sau khi bắt đầu thi công không?
Việc điều chỉnh thiết kế có thể thực hiện được nhưng sẽ tốn thêm thời gian và chi phí, nên cần cân nhắc kỹ trước khi bắt đầu thi công.
Câu hỏi 5: Làm thế nào để bảo trì nội thất shop thời trang?
Bảo trì nội thất bao gồm việc thường xuyên vệ sinh, kiểm tra và thay thế các vật dụng hư hỏng để đảm bảo không gian luôn trong tình trạng tốt nhất.
Vì Sao Nên Đặt Hàng Thiết Kế Thi Công Nội Thất Shop Thời Trang Tại Bluecons
Bluecons tự hào là đơn vị hàng đầu trong lĩnh vực thiết kế thi công nội thất shop thời trang. Chúng tôi mang đến dịch vụ chuyên nghiệp, chất lượng vượt trội và giá cả hợp lý. Với đội ngũ kiến trúc sư sáng tạo, giàu kinh nghiệm, chúng tôi cam kết sẽ biến ý tưởng của bạn thành hiện thực, không chỉ đáp ứng nhu cầu mà còn vượt qua mong đợi của bạn. Chúng tôi sử dụng vật liệu cao cấp, bền bỉ để đảm bảo rằng không gian shop của bạn không chỉ đẹp mà còn làm nổi bật thương hiệu của bạn trong mắt khách hàng. Hãy đến với Bluecons để được tư vấn và trải nghiệm sự khác biệt.










